GALERI PENGAWASAN LAPANGAN/ QUALITY CONTROL

PENGAWASAN PEMBANGUNAN PROJECT SEKOLAH

Pengerjaan susunan batu bata

Pengerjaan susunan batu bata untuk menampilkan fasade/ bentuk bangunan.

Lokasi: 📍Kab. Tapanuli Tengah Prov. Sumatera Utara

GAMBAR MEKANIKAL ARSITEKTUR (D.E.D) PROJECT RENOVASI SEKOLAH

1 / 12
2 / 12
3 / 12
4 / 12
5 / 12
6 / 12
7 / 12
8 / 12
9 / 12
10 / 12
11 / 12
12 / 12

DENAH SITUASI
DENAH JENIS PEKERJAAN RUANG KELAS
TAMPAK BANGUNAN BAGIAN DEPAN DAN BELAKANG
TAMPAK BANGUNAN SAMPING KANAN DAN KIRI
POTONGAN A - A SISI SAMPING
POTONGAN B - B SISI DEPAN
DENAH RENCANA BALOK DAN KOLOM
DENAH RENCANA ATAP
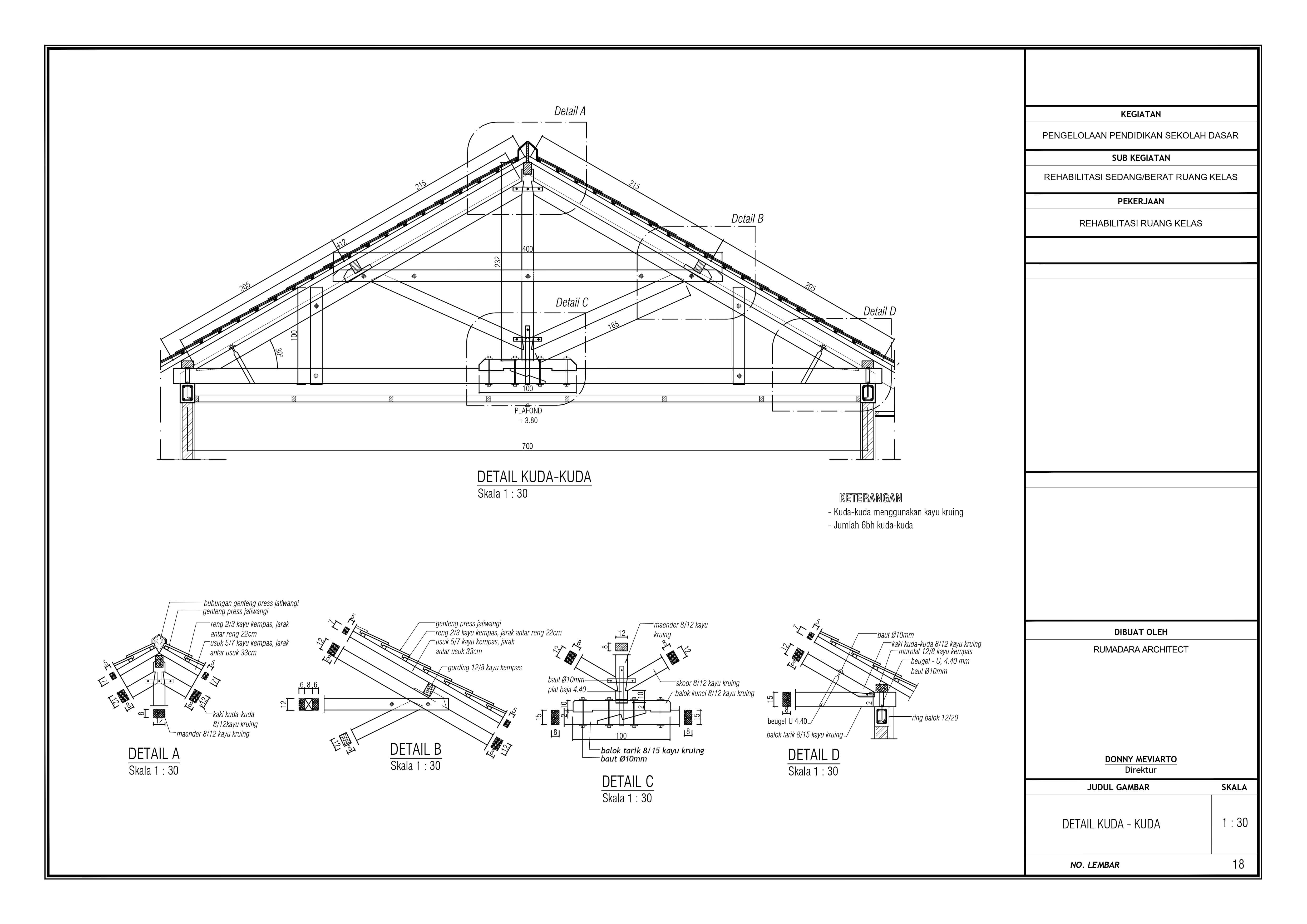
DETAIL KUDA - KUDA
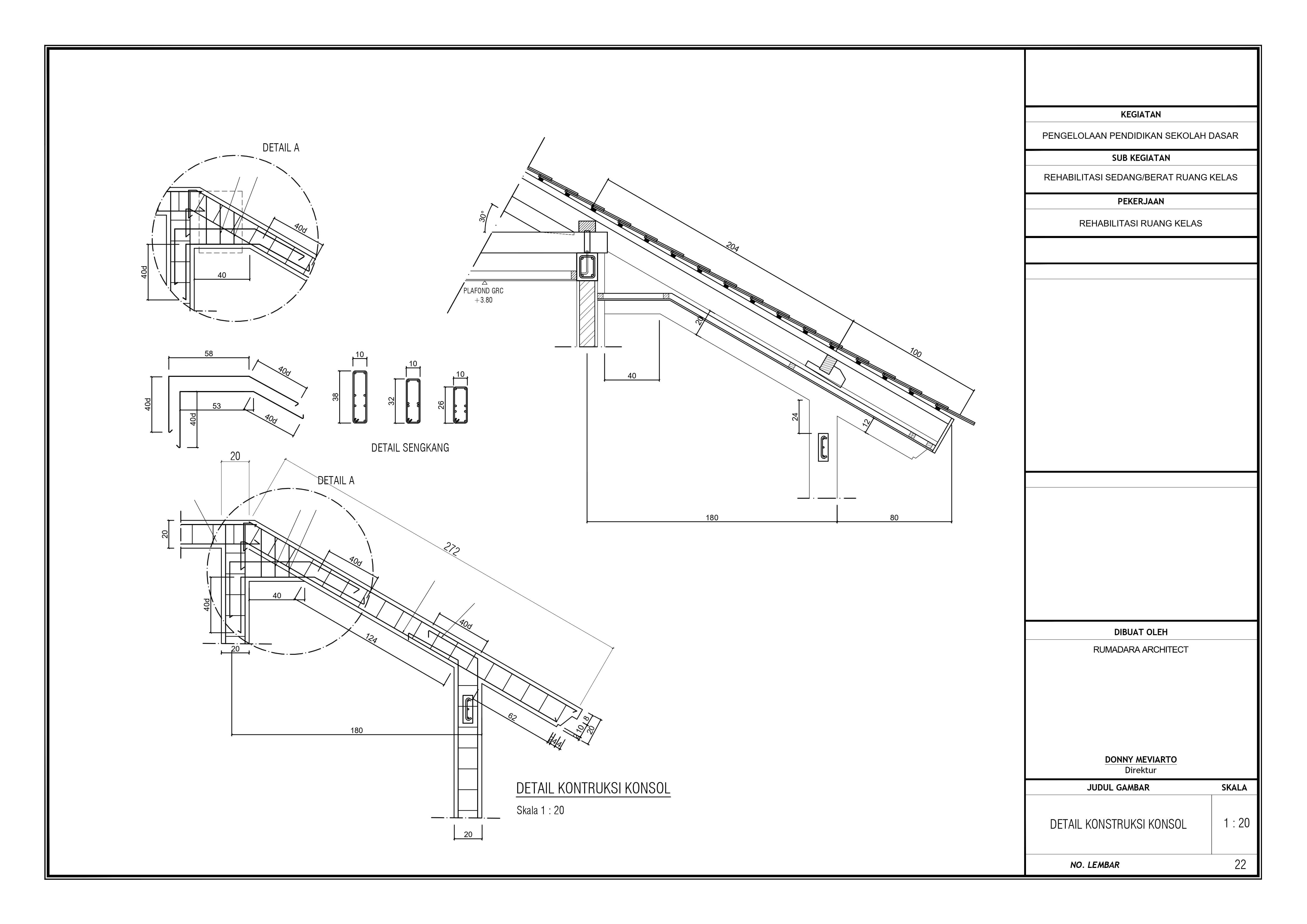
DETAIL KONSTRUKSI KONSOL
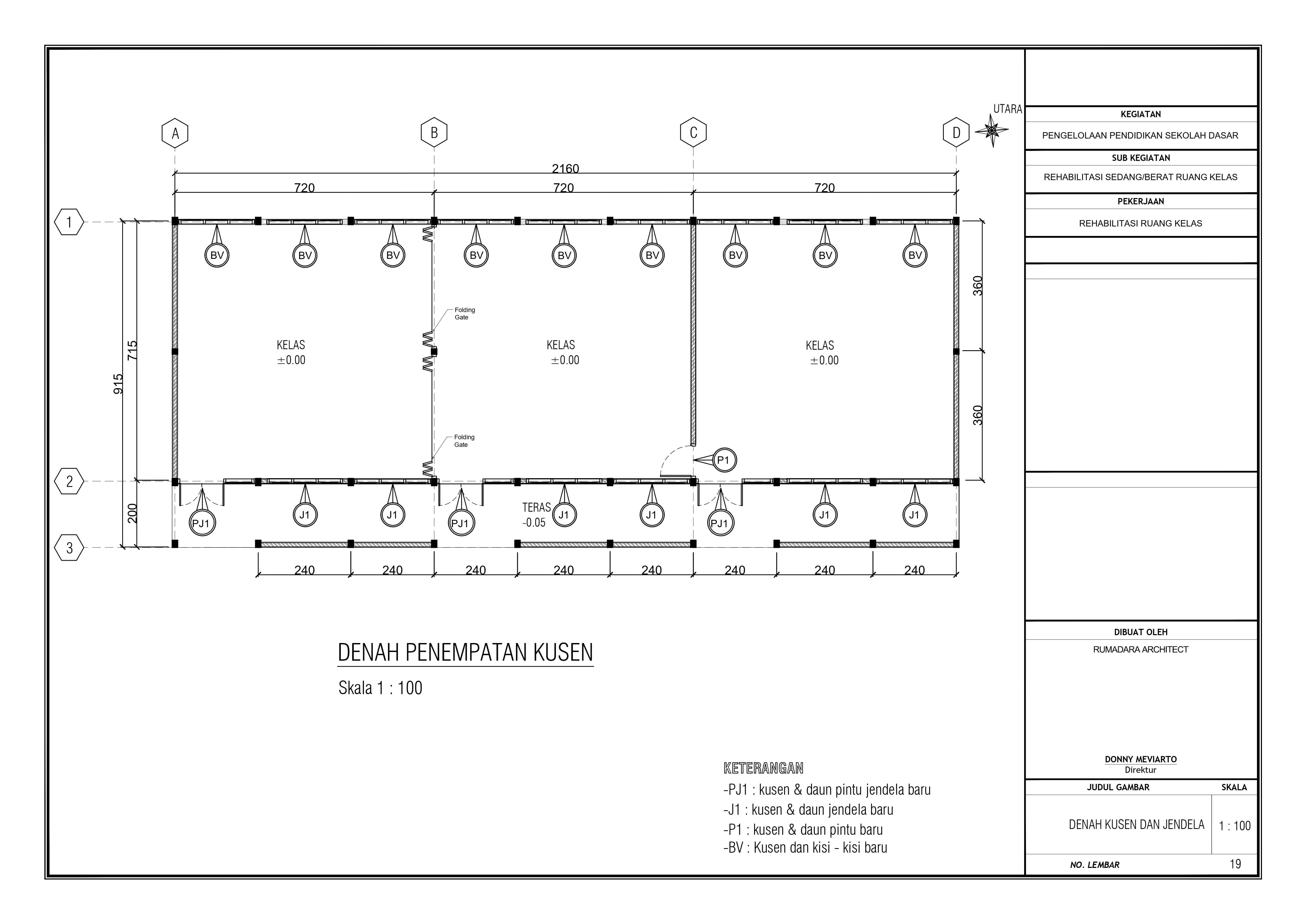
DENAH KUSEN DAN JENDELA
DETAIL PINTU DAN JENDELA

PENGAWASAN PEMBANGUNAN PROJECT SEKOLAH

Pengerjaan susunan batu bata

Pengecekan pekerjaan tukang secara berjangka.

Lokasi: 📍Kab. Tapanuli Tengah Prov. Sumatera Utara

PENGAWASAN PEMBANGUNAN PROJECT SEKOLAH

Pengerjaan susunan batu bata

Pengerjaan pembuatan kolom praktis dibagian selasar bangunan.

Lokasi: 📍Kab. Tapanuli Tengah Prov. Sumatera Utara

WhatsApp